CHẬU INOX HAFELE HS20-SSN2S90L 567.20.546 được phân phối chính hãng bởi TN Home, giao hàng nhanh, bảo hành và bảo trì tại nhà nhanh chóng.

THÔNG SỐ KỸ THUẬT CỦA CHẬU INOX HAFELE HS20-SSN2S90L 567.20.546

Chậu Inox Hafele HS20-SSN2S90L (567.20.546) là một sản phẩm chậu rửa bát cao cấp, mang đến sự tiện lợi và sang trọng cho không gian bếp của bạn. Dưới đây là thông tin chi tiết về thông số kỹ thuật và đặc điểm nổi bật của sản phẩm:
Thông số kỹ thuật:
- Model: 567.20.546
- Loại sản phẩm: Chậu rửa bát 2 hố lệch
- Chất liệu: Thép không gỉ (inox)
- Độ dày: 0.9 mm
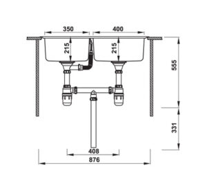
- Kích thước chậu: 860D x 500R mm
- Kích thước bồn: 350D x 400R mm / 400D x 400R mm
- Độ sâu bồn: 215 mm
- Kích thước cắt đá: 836D x 476R mm
- Đóng gói: 1 bộ tiêu chuẩn kèm Siphon (567.25.923)
- Phương thức lắp đặt: Lắp nổi
- Xuất xứ: Trung Quốc
- Kích thước tủ đề nghị: 900 mm
ĐẶC ĐIỂM NỔI BẬT CỦA CHẬU INOX HAFELE HS20-SSN2S90L 567.20.546

Đặc điểm nổi bật:
- Chất liệu cao cấp:
- Chậu được làm từ thép không gỉ (inox), có độ bền cao, chống ăn mòn và dễ dàng vệ sinh.
- Thiết kế tiện lợi:
- Thiết kế 2 hố lệch, giúp người dùng có thể thực hiện nhiều công việc cùng lúc.
- Thiết kế hố lệch giúp phân loại và rửa các loại thực phẩm khác nhau một cách dễ dàng.
- Độ sâu bồn lớn:
- Độ sâu bồn 215 mm giúp chứa được nhiều bát đĩa và hạn chế văng nước.
- Lắp đặt dễ dàng:
- Lắp nổi: chậu được đặt lên trên bề mặt bàn bếp.
- Phụ kiện đi kèm:
- Chậu đi kèm bộ siphon, giúp thoát nước nhanh chóng và ngăn mùi hiệu quả.
- Dễ lau chùi:
- Lớp tráng men toàn diện dễ dàng vệ sinh, ngăn ngừa sự hình thành của vi khuẩn và cặn bẩn.
- Thiết kế hiện đại:
- Chậu có thiết kế hiện đại, phù hợp với nhiều không gian bếp khác nhau.
- Bền bỉ theo thời gian:
- Sản phẩm được làm từ vật liệu inox cao cấp, có độ bền bỉ cao, giúp tăng tuổi thọ sản phẩm.
Tóm lại:
- Chậu Inox Hafele HS20-SSN2S90L (567.20.546) là một sản phẩm chậu rửa bát chất lượng cao, đáng để đầu tư cho những ai mong muốn một không gian bếp tiện nghi và sang trọng.
ĐÁNH GIÁ TỔNG QUAN VỀ CHẬU INOX HAFELE HS20-SSN2S90L 567.20.546
Chậu Inox Hafele HS20-SSN2S90L (567.20.546) là một sản phẩm chậu rửa bát cao cấp, mang đến sự tiện lợi và sang trọng cho không gian bếp của bạn. Dưới đây là đánh giá tổng quan về sản phẩm này:

Ưu điểm:
- Chất liệu cao cấp:
- Chậu được làm từ thép không gỉ (inox), có độ bền cao, chống ăn mòn và dễ dàng vệ sinh.
- Thiết kế tiện lợi:
- Thiết kế 2 hố lệch, giúp người dùng có thể thực hiện nhiều công việc cùng lúc.
- Thiết kế hố lệch giúp phân loại và rửa các loại thực phẩm khác nhau một cách dễ dàng.
- Độ sâu bồn lớn:
- Độ sâu bồn 215 mm giúp chứa được nhiều bát đĩa và hạn chế văng nước.
- Lắp đặt dễ dàng:
- Lắp nổi: chậu được đặt lên trên bề mặt bàn bếp.
- Phụ kiện đi kèm:
- Chậu đi kèm bộ siphon, giúp thoát nước nhanh chóng và ngăn mùi hiệu quả.
- Dễ lau chùi:
- Lớp tráng men toàn diện dễ dàng vệ sinh, ngăn ngừa sự hình thành của vi khuẩn và cặn bẩn.
- Thiết kế hiện đại:
- Chậu có thiết kế hiện đại, phù hợp với nhiều không gian bếp khác nhau.
- Bền bỉ theo thời gian:
- Sản phẩm được làm từ vật liệu inox cao cấp, có độ bền bỉ cao, giúp tăng tuổi thọ sản phẩm.
Nhược điểm:
- Giá thành tương đối cao.
- Xuất xứ tại trung quốc.
Tổng quan:
- Chậu Inox Hafele HS20-SSN2S90L (567.20.546) là một sản phẩm chậu rửa bát chất lượng cao, đáng để đầu tư cho những ai mong muốn một không gian bếp tiện nghi và sang trọng.
- Chậu rửa chén 02 hố chậu lệch.
- Chậu được làm từ Inox và có độ dày 0.9mm.
- Độ sâu của bồn là 215mm.
- Kiểu lắp đặt : Lắp nổi.
- Kích thước tủ đề nghị : 900 cm.
Nếu bạn đang tìm kiếm một chiếc chậu rửa bát vừa bền bỉ, vừa tiện dụng lại có tính thẩm mỹ cao, Chậu Inox Hafele HS20-SSN2S90L (567.20.546) là một lựa chọn tuyệt vời.
HÌNH ẢNH THỰC TẾ CỦA CHẬU INOX HAFELE HS20-SSN2S90L 567.20.546











