MÁY HÚT MÙI ÂM TỦ KAFF KF-TL70H được phân phối chính hãng bởi TN Home, giao hàng nhanh, bảo hành và bảo trì tại nhà nhanh chóng.

THÔNG SỐ KỸ THUẬT CỦA MÁY HÚT MÙI ÂM TỦ KAFF KF-TL70H
- Kiểu dáng: Âm tủ, dạng kéo (pull out).
- Chất liệu: Thân máy bằng inox cao cấp không gỉ.
- Kích thước:
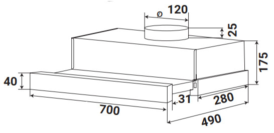
- Chiều ngang: 700mm.
- Chiều sâu: 280mm.
- Chiều cao: 200mm.
- Động cơ: Động cơ đôi, tổng công suất 120W.
- Công suất hút: Tối đa 750m³/h.
- Độ ồn: Tối đa 60dB.
- Hệ thống điều khiển: Phím bấm cơ với 3 tốc độ hút.
- Lưới lọc: Lưới lọc bằng hợp kim nhôm, 3 lớp.
- Đèn chiếu sáng: 2 đèn LED x 1.5W.
- Ống thoát: Đường kính 120mm.
- Chế độ hút: Có thể sử dụng 2 chế độ:
- Hút và đẩy trực tiếp ra ngoài qua đường ống.
- Hút tuần hoàn bằng than hoạt tính (phù hợp với các không gian không thể lắp ống thoát).
- Thời gian bảo hành: 3 năm chính hãng.

ĐẶC ĐIỂM NỔI BẬT CỦA MÁY HÚT MÙI ÂM TỦ KAFF KF-TL70H
- Thiết kế âm tủ gọn gàng: Điểm nổi bật nhất của dòng máy này là thiết kế âm tủ, giúp tiết kiệm không gian và tạo sự gọn gàng cho căn bếp. Khi không sử dụng, bạn có thể đẩy máy vào, làm cho bếp trông liền mạch và sạch sẽ.
- Vận hành đơn giản: Với bảng điều khiển bằng phím bấm cơ, việc điều chỉnh tốc độ hút rất đơn giản và trực quan, phù hợp với mọi người.
- Công suất hút hiệu quả: Mặc dù là máy âm tủ, công suất hút 750m³/h vẫn đủ mạnh để xử lý khói và mùi từ các món ăn hàng ngày, giữ cho không khí trong bếp luôn trong lành.
- Linh hoạt trong lắp đặt: Máy có thể lắp đặt với cả 2 chế độ hút, giúp người dùng dễ dàng lựa chọn phương án phù hợp với cấu trúc bếp của mình.
- Chất liệu bền đẹp: Thân máy bằng inox không gỉ đảm bảo độ bền cao và dễ dàng vệ sinh.

ĐÁNH GIÁ TỔNG QUAN VỀ MÁY HÚT MÙI ÂM TỦ KAFF KF-TL70H
- Ưu điểm:
- Tiết kiệm không gian: Thiết kế âm tủ là giải pháp lý tưởng cho các căn bếp nhỏ, mang lại vẻ gọn gàng, hiện đại.
- Giá thành hợp lý: Mức giá thường phải chăng hơn so với các dòng máy hút mùi kính cong hay kính vát.
- Hiệu suất ổn định: Động cơ mạnh mẽ, đáp ứng tốt nhu cầu sử dụng hàng ngày.
- Bảo hành dài hạn: 3 năm bảo hành là một cam kết đáng tin cậy từ nhà sản xuất.
- Nhược điểm:
- Độ ồn cao: Độ ồn tối đa 60dB có thể gây khó chịu khi máy hoạt động ở tốc độ cao nhất.
- Yêu cầu lắp đặt: Việc lắp đặt đòi hỏi phải có tủ bếp phù hợp để lắp âm.
- Tính thẩm mỹ: So với các dòng máy hiện đại, thiết kế này vẫn mang tính cổ điển, tối giản.

HÌNH ẢNH THỰC TẾ CỦA MÁY HÚT MÙI ÂM TỦ KAFF KF-TL70H








